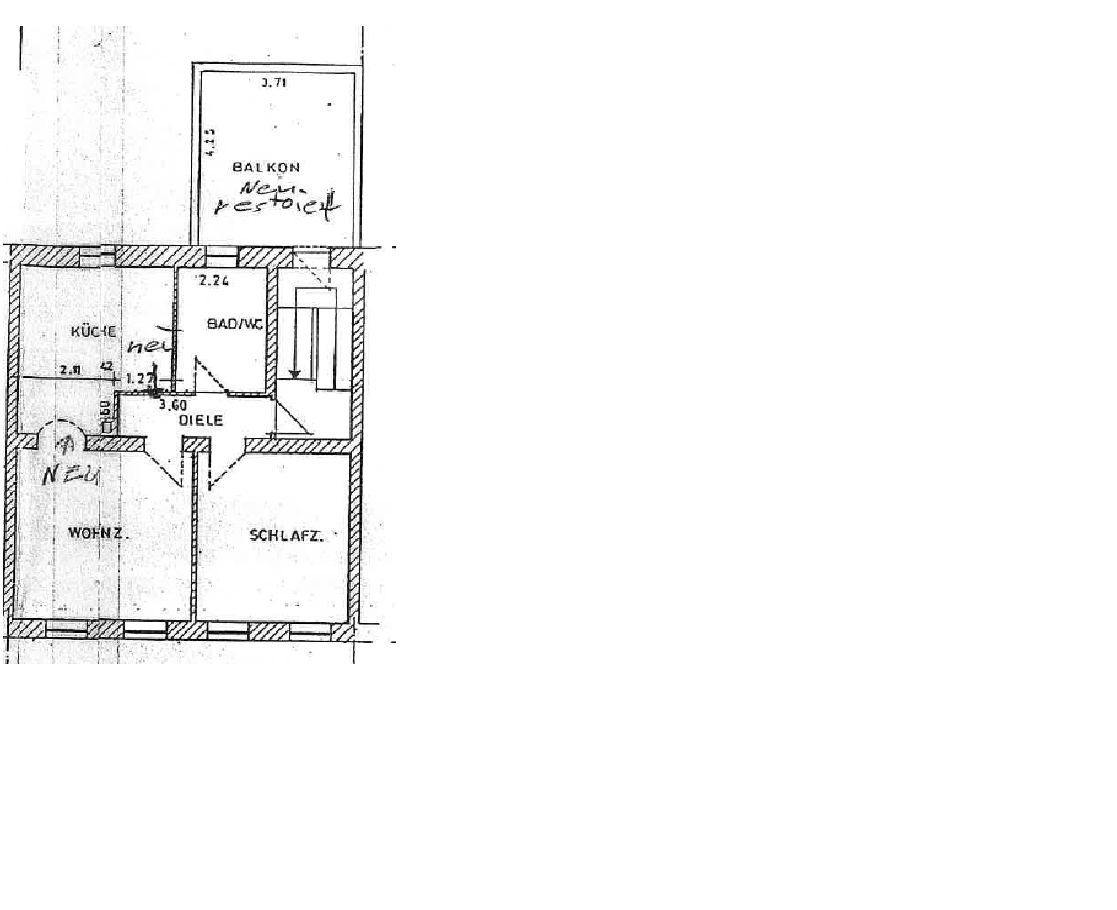
Offenes Apartment in Kempen
1ZKDB, 35qm, Balkon, EBK, Abstellraum, DG (3.OG)
Diese offene Apartment mit ca. 35m² Wohnfläche befindet sich im Dachgeschoss eines gepflegten 4-Parteienhauses (Sanierung 2021). Die Wohnung überzeugt durch ihre durchdachte Raumaufteilung und den schönen Balkon, der zum Entspannen einlädt.
Ausstattung:
Zimmer mit Küchen niesche und EBK (Spühlmaschine, Kühlschrank, Ofen mit Herd)
Tageslichtbadezimmer mit Dusche und Badewanne
Abstellraum mit Waschmaschinenanschluss
Balkon
Gas-Zentralheizung (Baujahr 2021)
Lage:
Die Wohnung liegt in ruhiger Wohnlage der Stadt Kempen (PLZ 47906). Die Straße ist gut angebunden. Einkaufsmöglichkeiten, Ärzte und öffentliche Verkehrsmittel befinden sich in erreichbarer Nähe.
Die Wohnung eignet sich ideal für Singles, die eine hochwertige und gut angebundene Wohnmöglichkeit suchen.
Besonderheit: Sie haben einen Tonnen-Service. Kein lästiges herausstellen der Mülltonnen. Ebenfalls eine Treppenhausreinigung
Gerne können Sie uns bei Interesse oder für weitere Informationen über unser Kontaktformular oder per Mail kontaktieren.
Bitte geben Sie immer die Anzeigenkennung mit an: KK-W1-11
Frei ab 01.07.2026
Kosten:
KM 540,00€
NK 95,00€
HK 70,00€
______________
WM 705,00€
Kaution: 1.620,00€
Hochwertige 2-Zimmerwohnung
2ZKDB; 65qm, Balkon, EBK, 1. OG
Diese hochwertige 2-Zimmer-Wohnung mit ca. 65m² Wohnfläche befindet sich im 1. Obergeschoss eines gepflegten 3-Parteienhauses . Die Wohnung überzeugt durch ihre durchdachte Raumaufteilung und den schönen Balkon, von welchem sich der Sonnenuntergnag geniessen lässt.
Ausstattung:
Helles Schlafzimmer mit elk. Fensterrolladen
Wohnzimmer mit elk. Fensterrolladen
Küche mit EBK
Tageslichtbadezimmer mit Dusche mit Waschmaschinenanschluss
Balkon
Gas-Zentralheizung (Baujahr 2021)
Stellplatzanmietung möglich
Lage:
Die Wohnung liegt in ruhiger Wohnlage der Stadt Kempen (PLZ 47906). Die Straße ist gut angebunden. Einkaufsmöglichkeiten, Ärzte und öffentliche Verkehrsmittel befinden sich in erreichbarer Nähe.
Die Wohnung eignet sich ideal für Paare mit und ohne Kinder, die eine hochwertige und gut angebundene Wohnmöglichkeit suchen.
Besonderheit: Sie haben einen Tonnen-Service. Kein lästiges herausstellen der Mülltonnen.
Gerne können Sie uns bei Interesse oder für weitere Informationen über unser Kontaktformular oder per Mail kontaktieren.
Bitte geben Sie immer die Anzeigenkennung mit an: KK-W2-9
Frei ab 01.07.2026
Kosten:
KM 750,00€
NK 120,00€
HK 90,00€
______________
WM 960,00€
Kaution: 2.250,00€
Hochwertige 3-Zimmerwohnung
3ZKDB; 95qm, Balkon, Gäste-WC, Abstellraum, Keller
Diese hochwertig ausgesattete 3-Zimmer-Wohnung mit ca. 95m² Wohnfläche befindet sich im 2. Obergeschoss eines gepflegten 3-Parteienhauses (Baujahr 2005). Die Wohnung überzeugt durch ihre durchdachte Raumaufteilung und den schönen Balkon, der zum Entspannen einlädt.
Ausstattung:
Helles Schlafzimmer
Wohnküche
Tageslichtbadezimmer mit Dusche und Badewanne
Gäste-WC
Abstellraum mit Waschmaschinenanschluss
Balkon
Kellerabteil inklusive, zusätzlicher Stauraum auch auf dem Dachboden
Gas-Zentralheizung (Baujahr 2005)
Energiebedarfsausweis: Klasse D 101,3 kWh/(m²-a)
Lage:
Die Wohnung liegt in ruhiger Wohnlage der Stadt Kempen (PLZ 47906). Die Straße ist gut angebunden. Einkaufsmöglichkeiten, Ärzte und öffentliche Verkehrsmittel befinden sich in erreichbarer Nähe.
Die Wohnung eignet sich ideal für Paare mit und ohne Kinder, die eine hochwertige und gut angebundene Wohnmöglichkeit suchen.
Besonderheit: Sie haben einen Tonnen-Service. Kein lästiges herausstellen der Mülltonnen.
Gerne können Sie uns bei Interesse oder für weitere Informationen über unser Kontaktformular oder per Mail kontaktieren.
Bitte geben Sie immer die Anzeigenkennung mit an: KK-W3-4
Frei ab 01.06.2026
Kosten:
KM 1.255,00€
NK 165,00€
HK 130,00€
______________
WM 1.550,00€
Kaution: 3.765,00€
Apartment in Kempen
Altbau 1ZKDB, inkl. Einbauküche
Dieses charmante Apartment mit ca. 35 m² Wohnfläche befindet sich im 1. Obergeschoss eines gepflegten 4-Parteienhauses (Baujahr 1910). Die Wohnung überzeugt durch ihre durchdachte Raumaufteilung , eine großzügige Einbauküche mit Spühlmaschine, Bachofen kombi, Waschmaschine und Kühlöschrank.
Ausstattung:
Küche mit EBK
Schlafzimmer, Fenster mit Rollläden
Badezimmer mit Dusche
Bezugs frei ab 01.05.2026
Lage:
Die Wohnung liegt Zentral zur Stadt Kempen (PLZ 47906). Die Straße ist gut angebunden, sodass Einkaufsmöglichkeiten, Ärzte und öffentliche Verkehrsmittel sich in direkter Nähe befinden. In zwei Gehminuten ist man in der Stadt Kempen.
Die Wohnung eignet sich ideal für Singles , die eine belebte und gut angebundene Wohnmöglichkeit suchen.
Besonderheit: Sie haben einen Rundum-Service. Kein lästiges putzen des Treppenhauses. Ebenfalls wird vor dem Objekt regelmäßig gepflegt und gesäubert.
Gerne können Sie uns bei Interesse oder für weitere Informationen über unser Kontaktformular oder per Mail kontaktieren.
Bitte geben Sie immer die Anzeigenkennung mit an: KK-W1-15
Kosten:
KM 450,00€
NK 70,00€
HK 70,00€
______________
WM 590,00€
Kaution: 1.470,00€
2 Zimmerwohnung in Kempen am Kuhtor
Altbau 2ZKDB, inkl. Einbauküche und Hofnutzung
Aktuell reserviert
Diese Albau- 2-Zimmer-Wohnung mit ca. 45m² Wohnfläche befindet sich im 1. Obergeschoss eines gepflegten 4-Parteienhauses (Baujahr 1910). Die Wohnung überzeugt durch ihre durchdachte Raumaufteilung , hohe Decken und die Altbaudielen.
Ausstattung:
Küche mit EBK
Wohnzimmer mit Blick auf die Kerkenerstr.
Schlafzimmer
Badezimmer mit Dusche
Eigene Gas-Etagentherme für Heizung und Warmwasser
Innenhof mitbenutzung
Energiebedarfsausweis:
Bezugs frei ab 01.04.2026
Lage:
Die Wohnung liegt Zentral zur Stadt Kempen (PLZ 47906). Die Straße ist gut angebunden, sodass Einkaufsmöglichkeiten, Ärzte und öffentliche Verkehrsmittel sich in direkter Nähe befinden. In zwei Gehminuten ist man am Kuhtor der Stadt Kempen.
Die Wohnung eignet sich ideal für Singles , die eine belebte und gut angebundene Wohnmöglichkeit suchen.
Besonderheit: Sie haben einen Rundum-Service. Kein lästiges herausstellen der Mülltonnen oder putzen des Treppenhauses. Ebenfalls wird der Hof regelmäßig gepflegt und gesäubert, sowie die Hecken geschnitten.
Gerne können Sie uns bei Interesse oder für weitere Informationen über unser Kontaktformular oder per Mail kontaktieren.
Bitte geben Sie immer die Anzeigenkennung mit an: KK-W2-16
Kosten:
KM 585,00€
NK 125,00€
HK 00,00€ (eigen Anmeldung für Gas Therme)
______________
WM 710,00€
Kaution: 1.755,00€
2 Zimmerwohnung in 47906 Kempen- St. Hubert
Frei ab 01.05.2026; Etage: 1., anmietung einer Garage möglich
Die Wohnung befindet sich in renovierung, daher sind keine Bilder vorhanden.
Helle 2-Zimmer-Wohnung in der Nähe zur Innenstadt von St. Hubert (47906 Kempen).
Diese helle und freundlich geschnittene Wohnung überzeugt besonders durch ihre ausgezeichnete Lage. Sie befindet sich in einem ruhigen, gepflegten 3-Parteien-Mehrfamilienhaus und bietet somit ein angenehmes Wohnumfeld.
Die Wohnung befindet sich in renovierung, daher sind leide rnur bedingt Beispiel Bilder aus dem Objekt verfügbar.
Ausstattung:
Küche
Wohnzimmer mit Blick auf die Bahnstr.
Schlafzimmer
Badezimmer mit Dusche
Gas-Zentralheizung
Garage optional anmietbar
Energiebedarfsausweis:
Bezugs frei ab 15.04.2026
Lage:
Die Wohnung liegt Zentral zur Stadt Kempen (PLZ 47906), im Stadtteil St. Hubert. Die Straße ist gut angebunden, sodass Einkaufsmöglichkeiten, Ärzte und öffentliche Verkehrsmittel sich in direkter Nähe befinden.
Die Wohnung eignet sich ideal für Singles oder Paare, die eine gut angebundene Wohnmöglichkeit suchen.
Gerne können Sie uns bei Interesse oder für weitere Informationen über unser Kontaktformular oder per Mail kontaktieren.
Bitte geben Sie immer die Anzeigenkennung mit an: KK-W2-13
Kosten:
KM 660,00€
NK 70,00€ (berechnet für eine Person, jede weitere Person +25€)
HK 60,00€
______________
WM 790,00€
Kaution: 1.980,00€









































